PE井作业井/室

/ 产品 / UST环保产品 / PE井作业井/室 / 模块化HDPE 16面两件式井|加油站地下管道和工业液体管理

模块化HDPE 16面两件式井|加油站地下管道和工业液体管理

模块化HDPE 16面两件式井|加油站地下管道和工业液体管理

RFMOW-1464 模块化两件式 HDPE 井专为加油站和工业液体系统而设计,这些系统的耐用性、灵活性和易于维护至关重要。在全球范围内,该产品根据地区和行业标准有多个名称认可。在西班牙语地区,它被称为 “Pozo operativo HDPE modulate de 16 caras,” 在德语中称为 “Modularer HDPE 16-seitiger Schacht,” 在法语中称为 “Puits opérationnel HDPE modulaire à 16 faces,” 在意大利称为 “Pozzetto operativo HDPE modulare a 16 lati。” 这些名称都描述了一种适用于管道、阀门和集水坑连接的高强度地下通道解决方案。

RFMOW-1464 由高密度聚乙烯制成,具有优异的耐化学性、优异的密封能力和长期的结构完整性。其两件式设计允许上部和下部部分单独安装,为在受限或复杂的现场条件下安装提供最大的灵活性。模块化结构还简化了现场处理、部分更换和未来的维护,而无需拆除整个井。

外法兰结构增强了对地下管道的安全连接,同时确保可靠地密封以防止土壤和水进入。这种配置保护关键的地下组件,包括燃料输送阀、监测仪器和蒸汽回收系统,有助于操作安全和法规合规性。

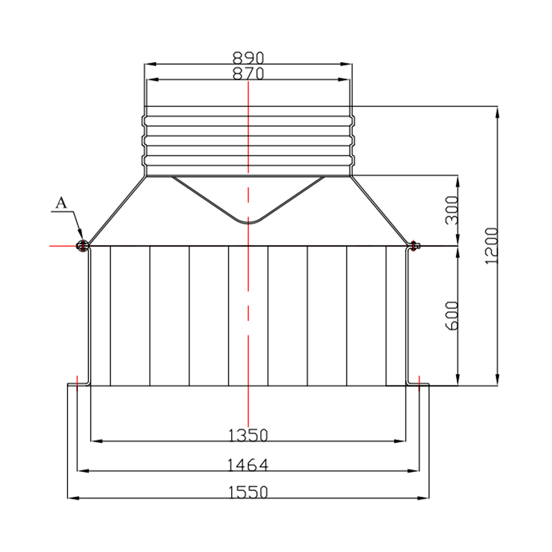
技术规格和定制选项
材质:高密度聚乙烯(HDPE)
安装方式:外法兰型
法兰螺栓孔中心距:1464 毫米,可调
螺栓孔:标准 32 孔,直径 13 毫米,可定制
车身外径:1370毫米,内径:1350毫米
颈部外径:890 毫米,内径:870 毫米
管道连接段高度:600毫米
总高度:1200 毫米
形状:常规16边形
壁厚:10 毫米,可根据要求定制
颜色选项:绿色、白色、黑色、灰色;提供定制颜色和徽标雕刻

主要优势
灵活的模块化安装:两件式设计允许上部和下部独立安装
耐用且耐化学腐蚀:HDPE 在恶劣环境下提供长期性能
出色的密封性:向外法兰确保与地下系统的防漏连接
易于维护和部分更换:模块化结构方便未来的升级和检查
可定制选项:螺栓孔、壁厚、颜色和品牌可根据项目要求定制
国际兼容性:专为全球加油站、工业流体管道和化学储存系统使用而设计

RFMOW-1464井系列为加油站地下管道和工业液体管理提供了可靠、模块化、高效的解决方案。其两件式结构、16 面几何形状和外法兰设计最大限度地提高了安装灵活性、操作安全性和维护便利性。

  • 规格
  • 联系我们

真实产品和现场应用图像:

RFMOW-1464 两件式 16 面 HDPE 井(油罐集水坑),带外法兰

它专为需要高灵活性和耐用性的加油站和地下管道系统而设计。两件式结构允许单独安装上部和下部,使其成为复杂或有限空间环境的理想选择。它由高强度 HDPE 制成,具有出色的耐化学性、密封性能和较长的使用寿命。模块化设计还简化了运输和现场调整,同时在需要时可以轻松维护和部分更换。

技术规格:
材质:高密度聚乙烯(HDPE)
安装方式:外法兰型
法兰螺栓孔中心距:1464 毫米,可根据需要调节。
螺栓孔:通常为 32 个孔,直径为 13 毫米;可根据要求定制。
车身外径:1370毫米
车身内径:1350毫米
颈部外径:890毫米
颈部内径:870毫米
管道连接段高度:600毫米
总高度:1200毫米
形状:常规16边形
壁厚:10 毫米,其他厚度可根据要求定制。
颜色:绿色、白色、黑灰色等。可根据要求提供定制颜色和徽标雕刻。

关于海波
浙江海波石油设备有限公司。

浙江海波石油设备有限公司成立于2017年,是一家位于浙江省温州市永家县的认证企业—被全球公认为全球最大的石油设备制造基地,也是中国著名的泵阀之乡。
我们的产品广泛应用于流体控制系统、能源系统、测量系统、管道系统和液压系统,为世界各地的石油公司、军事单位、油库、油罐车制造商和加油站提供服务。省—被全球公认为全球最大的石油设备制造基地,也是中国著名的泵和阀门故乡。
在海博,我们拥有一支在石油设备和流体控制领域拥有 20 多年专业经验的高级行业专家团队。他们深厚的技术知识和行业洞察力确保我们提供的每种产品和解决方案都符合质量、可靠性和性能的最高标准。

荣誉证书
  • 实用新型专利证书
  • 实用新型专利证书
  • 实用新型专利证书
  • 实用新型专利证书
  • 实用新型专利证书
  • 实用新型专利证书
  • 实用新型专利证书
  • 实用新型专利证书
  • 实用新型专利证书
  • 实用新型专利证书
  • 测试报告
  • 测试报告
新闻
  • 随着国内油轮行业环境安全标准的不断提高,对加油站设备精细运行的需求变得越来越迫切。浙江海博石油设备有限公司凭借多年的技术研发和生产经验,打造了一系列油罐车和燃油分配器零件。这些产品适应性强、稳定性高、安全性高,已成为能源运输和石油零售终端的核心支撑选择,保障整个石油产业链的安全运行。 在油轮零部件领域,海博石油密切关注2024年油轮行业的新政策要求,推出包括密封件、阀门、连接器等全系列...

    READ MORE
  • 近日,浙江海博石油设备有限公司多款燃油喷嘴产品完成技术升级。凭借其精准计量、安全防护、适应智能化等核心优势,成为石油零售终端设备升级的首选方案,为加油站行业高质量发展注入新动力。 海博石油是一家扎根于石油设备领域的专业企业,其燃油喷嘴产品广泛应用于全国各加油站、油库、加油场景。此次升级严格遵循2025年燃油喷嘴行业新标准要求,将双校准模块集成到产品设计中,实现机械和电子检测。错误率严格...

    READ MORE